產品概述
使用環境
技術參數
尺寸結構
資料下載ARW3系列萬能式斷路器,適用于交流50Hz、額定電流200A~4000A、額定絕緣電壓相關至AC1500V、額定工作電壓AC400V、AC500V、AC690V、AC800V、AC1000V、AC1140V、AC1500V的配電網絡中,用來分配電能和保護線路及電源設備免受過載、欠電壓、短路、單相接地等故障的危害。同時也具有隔離功能。斷路器具有多種保護功能,高精確的選擇性保護,提高了供電可靠性。

● 寬大的極間距,方便接線安裝,更加安全;
● 高分斷能力、零飛弧距離、安全性高;
● 模塊化結構、通用性強、體積小;
● 具備三位置鎖定及解鎖裝置、操作安全可靠;
● 智能化保護功能齊全可靠;
● 水平、垂直、混合等多種接線方式;
● 上或下進線連接均可;
● 集成化通訊方式、適用于多種協議;
● 符合GB/T14048.1低壓開關設備和控制設備 第1部分:總則
● 符合GB/T14048.2低壓開關設備和控制設備 第2部分:低壓斷路器
● ARW3系列智能型萬能式斷路器已獲得**CQC證書
斷路器型號 | ARW3-1600 | ARW3-2500 | ARW3-4000 | ||||
分斷能力 | 高電壓 HU 型 | 高電壓 HU 型 | 高電壓 HU1 型 | 高電壓 HU 型 | 高電壓 HU1 型 | ||
額定電流(A) | In | 400、630、800、1000、1250、1600 | 630、800、1000、1250、1600、2000、2500 | 630、800、1000、1250、1600、2000、2500、 | |||
額定工作電壓(V) | Ue | AC800、1000 | AC800、 1000 、1140 、1500 | AC800、1000、1140、1500 | |||
額定絕緣電壓(V) | Ui | 1250 | 1500 | ||||
額定沖擊耐受電壓(kV) | Uimp | 12 | 14 | ||||
工頻耐受電壓(V) | U | AC3500V,50Hz,1min | |||||
極數 | P | 3、4 | |||||
N 極額定電流(A) | 100%In | ||||||
額定極限短路分斷能力(kA)/ | Icu/Ics/Icw/Icm | AC800V | 18/18/36/39.6 | 75/75/75/165 | / | 75/75/75/165 | / |
AC1000V | 18/18/36/39.6 | 65/65/65/143 | / | 65/65/65/143 | / | ||
AC1140V | / | 50/50/50/110 | 70/70/70/154 | 50/50/50/110 | 70/70/70/154 | ||
AC1500V | / | / | 50/50/50/110 | / | 50/50/50/110 | ||
全分斷時間(無附加延時)(ms) | 12-35 | ||||||
閉合時間(ms) | <60 | ||||||
操作性能 | 機械壽命(次) | 免維護 | 15000 | 10000 | 10000 | ||
有維護 | 20000 | 15000 | 15000 | ||||
電氣壽命(次) | AC800V/ | 500 | 2000(630-1600A) | 2000(630-1600A) | |||
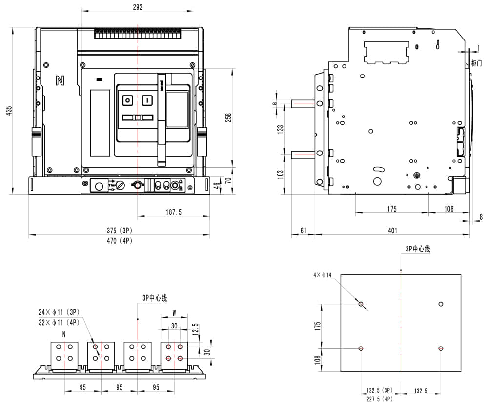
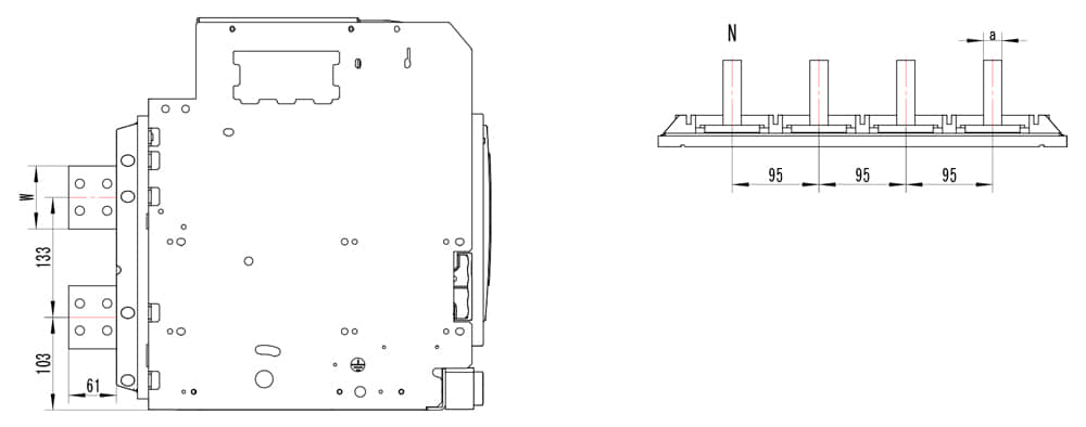
外形尺寸:高×寬×深(mm) (深不包括母排長度) | 抽屜式 | 3P | 354×254×305 | 435×375×410 | 435×435×410 | ||
4P | 354×324×305 | 435×470×410 | 435×550×410 | ||||
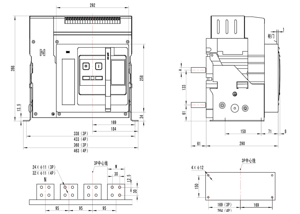
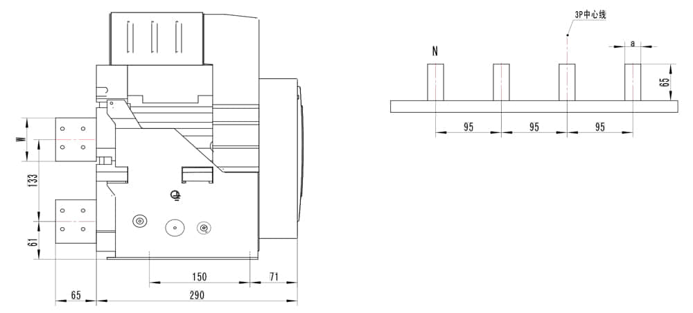
固定式 | 3P | 324×269×203 | 398×368×299 | 398×430×299 | |||
4P | 324×339×203 | 398×463×299 | 398×545×299 | ||||
ARW3-2500抽屜式
水平接線

垂直接線

ARW3-2500固定式
水平接線

額定電流(A) | a(mm) | w(mm) |
630~1600 | 15 | 60 |
2000~2500 | 20 | 70 |
垂直接線

額定電流(A) | a(mm) | w(mm) |
630~1600 | 15 | 60 |
2000~2500 | 20 | 70 |
關注公眾號掃碼領取樣本